A 1959 flat by Ernst Plischke above the garage of diplomats and art collectors Frank and Lyn Corner seems to expand well beyond its four small walls

This little “granny flat” in Wellington is an Ernst Plishcke gem
Wellington’s hillsides are famously dotted with the modernist creations of one of Austria’s greatest mid-century architects: Ernst Plischke’s white or pale blue-painted, flat-roofed pavilions can be seen popping above ridgelines or attached to hills around the city. Last year, in Thorndon – just a short walk from Parliament – I had the joy of living in a little Plischke gem.

From the street you wouldn’t exactly call it pretty, sitting as angular as a shipping container above bunker-like garages at the end of an avenue of elegant bay villas and tile-roofed cottages. But as you enter, its sculptural, jewel-like qualities unfold: all timber and glass, connecting the interior to a peaceful garden.
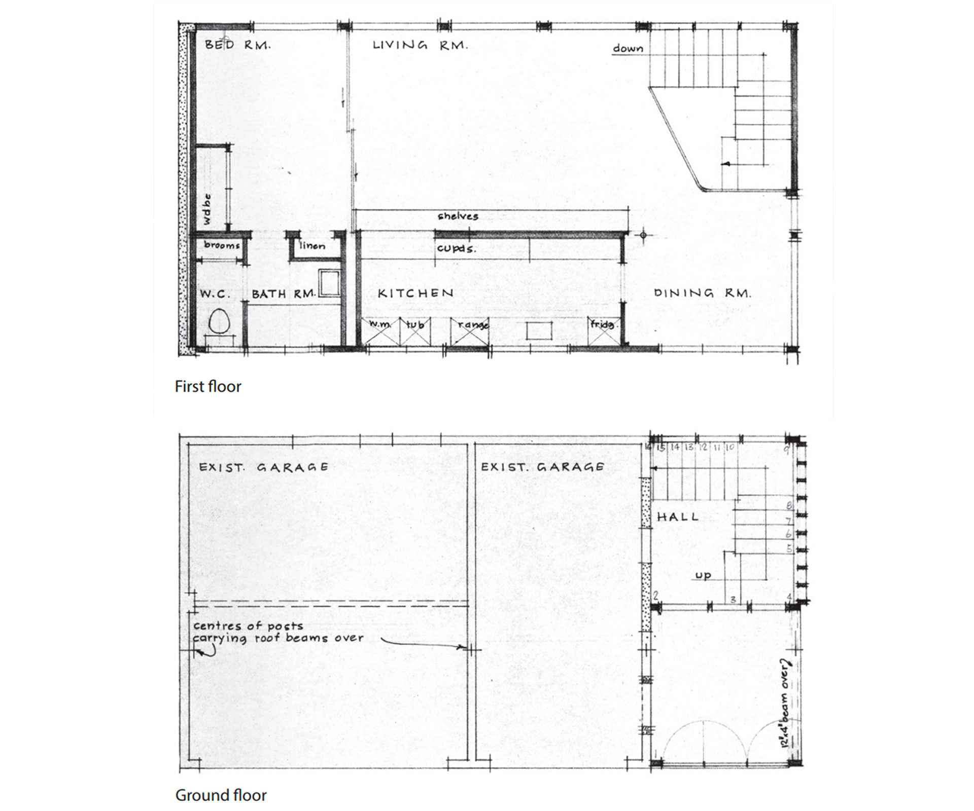
Comprising one large open-plan space (with a clever sliding wall for optional bedroom screening), plus kitchen and bathroom, the ‘Corner Flat’ is possibly the smallest home Plischke built in New Zealand. It may also be the last he completed before returning to Austria.

It began as most homes above garages in this country do: as a granny flat. After years posted abroad in Washington and London, my grandparents Frank and Lyn Corner (lifetime diplomats for New Zealand) returned home and bought a Georgian-revival style house designed by William Gray Young on a large, flat section in the central Wellington suburb of Thorndon. Though this main house came to serve them well, modernism was more to their taste. They had their chance in 1959 when my great-grandmother needed somewhere to live in Wellington. This provided the excuse for a happy collaboration with Mr Plischke, whom they’d come to know and admire, to create a one-bedroom pavilion above the garages.

In the 1970s, after another decade’s diplomatic work overseas, the flat fulfilled for a time my grandparents’ vision of music room and guest house – Wellington’s version of a Barcelona Pavilion, complete with a Mies van der Rohe suite, a Knoll dining suite, and even a baby Steinway piano. A decade later, the flat became my aunt Katy Corner’s long-term home, and a meeting place for Wellington’s art community. A long-time artist and contributor to publications such as ArtNews New Zealand, Katy’s time in the flat saw it become less minimalist, morphing into a Wunderkammer – it was during this phase that, as a child, I first came to know the space. For a small dwelling it managed to contain more than you’d believe, Plischke’s ample built-in storage (a mainstay of Plischke & Firth design) accommodating decades of collecting.

Last year, I became the third generation to occupy the flat – and the first to have been bothered by the lack of a shower. (Mr Plischke seemed to have thought a bath was all one needed.) So it was that the flat came to have its only major alterations, to the kitchen and bathroom, under the sympathetic eye of Stuart Gardyne of Architecture Plus. This followed some careful double glazing and weather sealing of the south side by Ewan Brown of Tennent Brown Architects a year earlier. I am all too aware that it took a ‘millennial’ to suggest that Plischke’s design might be lacking something!

Most of all, I will always remember my time in Plischke’s gem as a year’s education in architecture, art and design. My grandparents collected art throughout their lifetimes, gradually building a significant collection. One of the great privileges of living in the flat was being able to rotate the art on the walls, popping down the path to the main house to swap a painting or sculpture. Always, however, Tanya Ashken’s Carrara marble ‘Torso’ sculpture sat in the double-height lantern-like atrium, around which wrapped Plischke’s staircase; and above it, to the right, hung ‘Window’, a large oil painting by Ashken’s husband John Drawbridge.

The flat is my own understanding of a Gesamtkunstwerk, or ‘total work of art’. Inside, the normal separations between art, architecture, design and nature seemed to dissolve: Drawbridge’s ‘Window’ is echoed by the view of a tree through a vertical strip of glass; Plischke’s wood seems to merge with artwork frames; furniture and architecture come to seem inseparable.
On top of this, Plischke’s built-in bookshelves were always stocked, completing the education that merely spending time in the flat was giving me (reading the first 10 issues of literary magazine Landfall from the late 1940s seemed an appropriate thing to do when my sister discovered copies stashed in the back of the bookshelves). The flat was a time capsule of 20th-century New Zealand culture, containing everything one needed to immerse oneself within it.

Surrounded by trees and dark wood panelling, and with my choice of minimalist abstractions on the walls, the flat became my retreat into a pared-down world of art and ideas (not bothering to install wifi was perhaps the best decision I made). We can travel to the other side of the world, to, say, the post-industrial Naoshima art islands in Japan, or to the Louisiana Museum outside Copenhagen, to find that very kind of world. That it could be found in a little flat above a garage down the road from Parliament was an ultimate lesson in the inspiring abundance of culture that Wellington and New Zealand offer.
But time moves on; family needs change as generations roll on; and both the Plischke flat and the Georgian-style house were sold together in March, following the sale of the large part of Frank and Lyn’s art collection. As much as we wanted to hang on to the flat, to sell the main house separately from Plischke’s gem seemed a little like cutting off a third of a beautiful landscape by McCahon and selling the rest.

Saying goodbye to such a special home intertwined with the life of a family was never going to be easy, but it is exciting to think of another family enjoying the way of life offered by this combined creation of Frank and Lyn Corner, William Gray Young and Ernst Plischke. That thought helps – as does excitement at the prospect of one day myself making a call to an architect. Only time will tell if I’m asking for my own house, or some help with a granny flat above the garage.

Words by: Michael Moore-Jones. Photography by: Sam Hartnett.
[related_articles post1=”82980″ post2=”82964″]




