As someone who travels a lot for work, it’s fitting that Graeme Nicholls’ small, one-bedroom home in Lyall Bay is nicknamed ‘Suitcase’ house

Project
‘Suitcase’ house
Architect
David Melling, Melling Architects
Location
Lyall Bay, Wellington
Brief
Fit a tiny home on a bush-clad site for a single occupant who travels often

It’s fitting that Graeme Nicholls’ small home is nicknamed ‘Suitcase’ house – the flight manager spends more than 20 nights a month living out of a suitcase in hotel rooms here and across the Tasman.
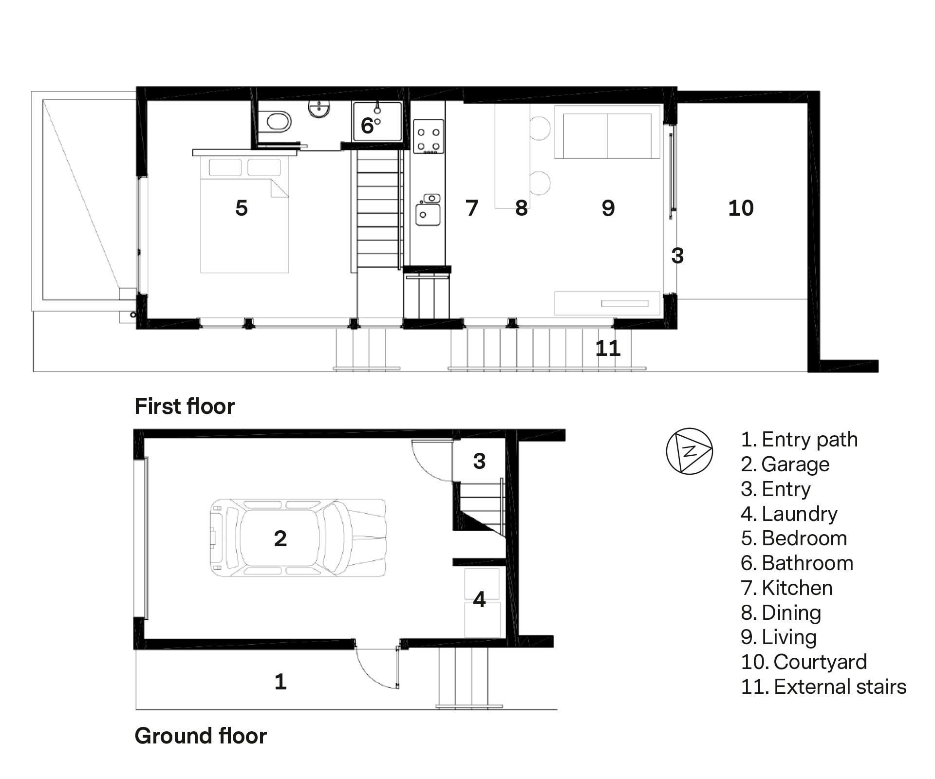
When Nicholls bought the section on a bush-clad hill above Wellington’s south coast five years ago, he took on a challenge: it was long and steep, with a flat area at the top and a rundown garage near the bottom.
Nicholls was drawn to the sweeping view across Lyall Bay and wanted to frame that, but access to the top of the site was an issue. Instead, architect David Melling chose to build a narrow house following the slope of the land on the accessible lower part of the site. The biggest challenge, says Melling, was excavating, which removed 95 cubic metres of earth, and foundations. “The only way to build this house was to build into the hill. The biggest cost was the foundations because you have to hunker into the hill.”

From the road, the black-aluminium-corrugate-clad 60-square-metre house is hidden and very private. Looking up to it from the bay, a burst of orange on the exterior panelling resembles a mandarin slice. “We had a bit of fun with that,” says Nicholls.
The roofline slopes towards the road, and the interior consists of two cubes that make up a total of 36 square metres. The ceiling is comprised of freezer panels and the walls are ply and macrocarpa. The Qantas flight manager was happy with a small, open-plan living area in one module, with the bedroom accessed via a couple of steps in the module above. His sofa bed packs up, and the compact bathroom off the living section is all he needs.

Nicholls is used to the confines of hotel rooms and came to Melling with images of some of his favourite suites. He collects architecture books and magazines – all of which are on display. “Graeme’s original idea was to plonk a room on the top of the garage, and that’s what it has ended up being really – a little hotel room on top of a modern garage.
From his bedroom, Nicholls can look through a cut-out dividing the two areas, up through windows and into the bush. One of the exterior walls is windowless, nestling into the site. “I like the privacy here. I’m constantly surrounded by people and I love getting away from everything and just listening to the surf and the planes. There’s a serenity about it.’’

When he’s not watching the surf through the large windows that frame Lyall Bay, Nicholls likes to spot the planes taking off and landing on the airport runway in the distance. “I watch the Melbourne flight leaving at 5pm, and think, ‘You’re running a bit late, guys.’”
Words by: Sarah Catherall. Photography by: David Straight.
[related_articles post1=”103896″ post2=”71469″]




