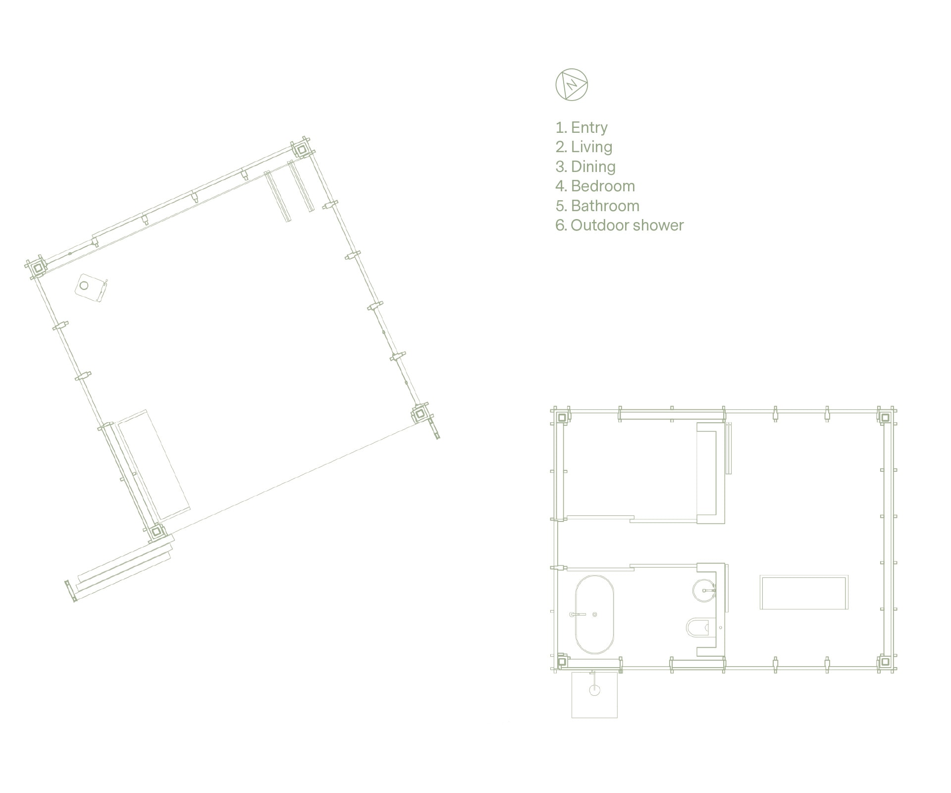
Lance and Nicola Herbst take us inside one of their original designs: a 20-year-old bach on Great Barrier Island
Q&A with architects Nicola and Lance Herbst
What does the bach mean now?
Nicola Herbst— We have two separate lives – different sides of the same coin. We have a city existence and a bach existence. They’re a wonderful antithesis, and it has always been like that. It never changes for us.
Lance Herbst— A continuum, I suppose. You look at Auckland and the way it has changed in the past 20 years. The island hasn’t really changed, whereas Auckland is a totally different place.
Your houses now seem a long way from this. How does this place figure in your thinking?
LH— As an architect, when you get a brief you go from 50 square metres to 100 square metres to 150 square metres, even to 200 square metres, and you can still do small. The best brief is actually 150 to 200 square metres, and you can still control the object. Then somehow you’re at 450 square metres and how do you do it? It’s a different world altogether, but we think texture has a lot to do with scaling up – and that’s what we’ll take with us, more than place-making or spaces or technology. We make things rougher and rougher rather than smoother – trying to get bricks on the floors and rough timber on the walls as much as we can.
NH— I don’t think we’ll ever wash it out of our thinking. If you start with people and how they behave and occupy, then you’re always going to get it right. And generally we’ll still take on a commission that is still a bach.

Your early reputation was almost about what you could do without rather than what you’d add. Where does that fit now?
LH— Even the very wealthy clients come to us because they get a sense that there’s sustainability – so we get into discussions with them around self-sufficiency and solar and energy. But at the same time we generally have these ridiculous sites with these incredible views, and there’s going to be a lot of glass, and they’re often holiday houses. It’s something we have to grapple with – it’s quite a reflective period for us.
NH— The path we’re on is because of who we are – rather than just because there were some opportunities. We’re so in love with this place, and everything it has given us, and it’s really formed our thinking. So it’s kind of through choice.
What happens here long-term?
NH— It’s an interesting question. We look ahead and say do we want to spend more time here? I guess we, and some similarly aged friends, will spend four to five months here a year.
Does that mean the wifi might go on?
LH— It’s a balance. It’s not an absolute balance, and it changes as you get older. If you spend more time here you might want to watch a movie or stream music.
See more of the Great Barrier bach below





