A solid 1960s breeze block home in Remuera is reinterpreted for modern day living while honouring Geoff Newman’s brutalist features

A Remuera home by Geoff Newman is given a sympathetic update
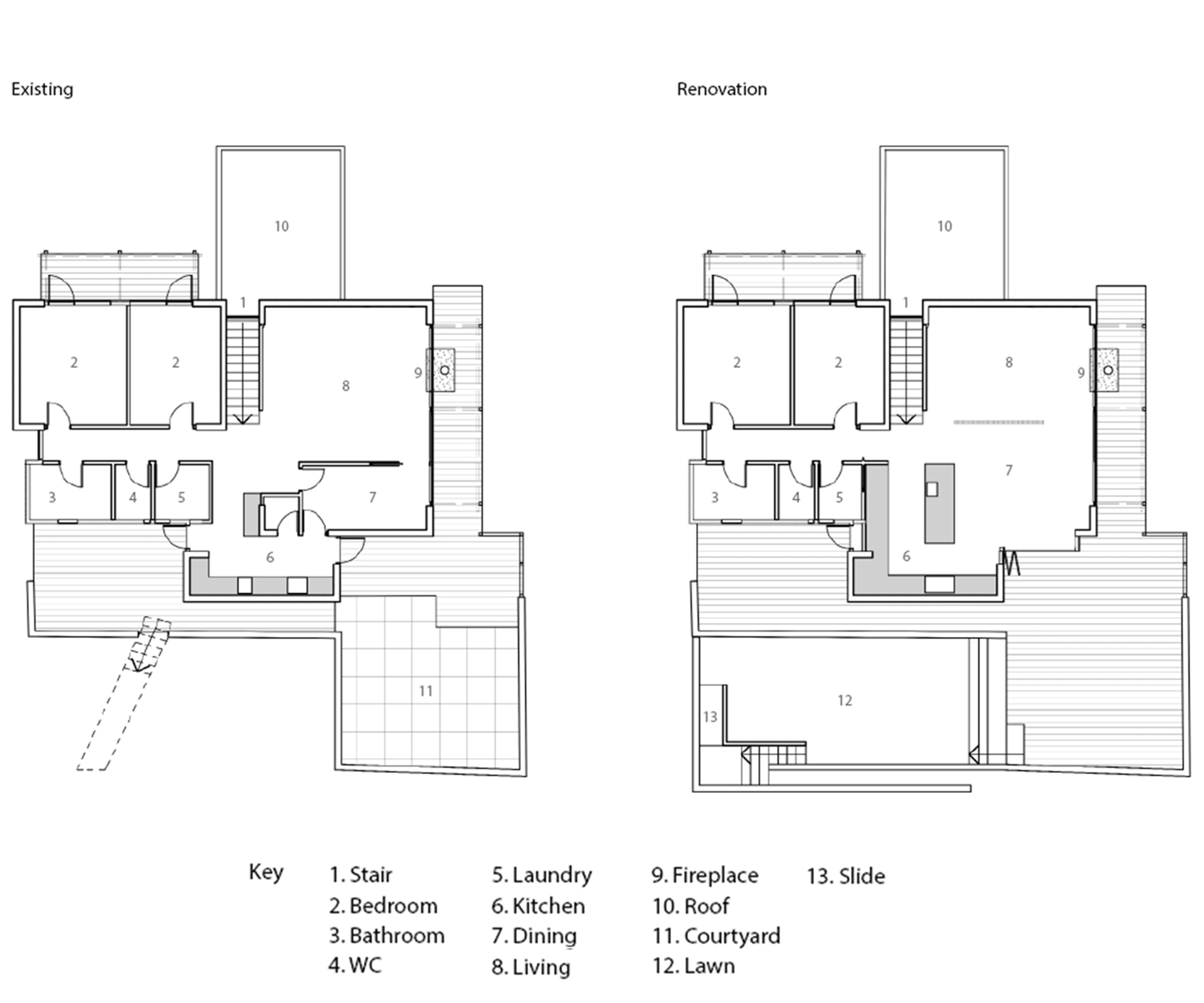
Geoff Newman didn’t design many houses but in 1963 he did for criminal lawyer Peter Williams the end of a cul-de-sac in Remuera. A street where you’ll also find houses by Ron Sang, the Group, Claude Megson and more.
The original structure was something of a fortress comprised of two stories of white-painted concrete block with black timber negative details, and very few windows on the northern side.
Forty years and just one more owner later, Martin Yeoman and Susan Verner were living just down the street and were on the hunt for a home with more space. They spent months dropping notes in the letterboxes of houses they admired and eventually the Newman house was theirs.
After living in the house for a few years, they called on their friend Lisa Webb to make some changes. The result is a home perfect for modern family living that’s been carefully considered down to the smallest of details.
[gallery_link num_photos=”1″ media=”https://homeofarchitecture.co.nz/wp-content/uploads/2017/02/img8-23.jpg” link=”/inside-homes/home-features/1960s-concrete-fortress” title=”See the full story here”]
[related_articles post1=”63953″ post2=”42117″]





