Architectural designer, Tobin Smith discusses his modern cottage in inner-city Christchurch and how storage and sunlight are invaluable in a small home
[jwp-video n=”1″]
Why good storage and sunlight are the keys to a successful small home
Tobin Smith had been noodling around for years with the idea of a modern cottage, based on the small, charming 19th-century designs in the side streets beside Bealey Avenue, just east of the city’s CBD.
“They were quite charming and were close to people’s work,” he says. “And I kept wondering why we weren’t building houses like this for professional couples now. So we thought we’d make a modern interpretation.”
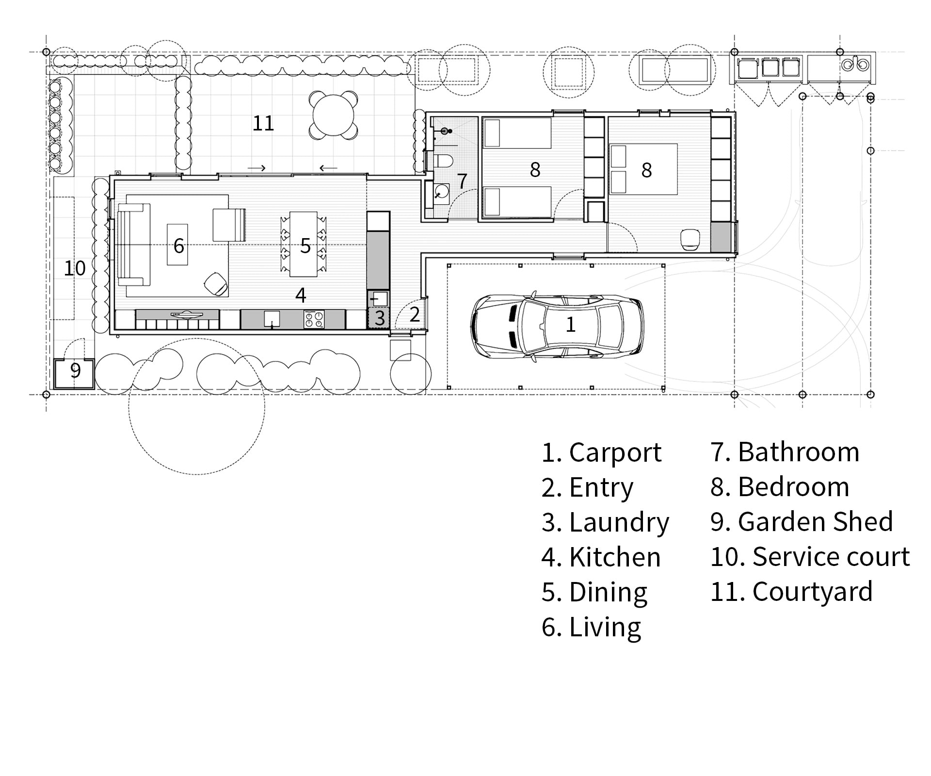
Smith began to design a hypothetical cottage on sites dotted around the area, gradually evolving the idea from the classic pitched-roof cottage – a square with a hall up the middle and bedrooms off the spine – into something more refracted and offset.
[gallery_link num_photos=”5″ media=”https://ct3fd3fhh2t45fd1m3d9sdio-wpengine.netdna-ssl.com/wp-content/uploads/2017/08/Christchurch9.jpg” link=”/inside-homes/home-features/urban-cottage-on-a-quake-damaged-christchurch-site” title=”Read the full story here”]
Q&A with Tobin Smith of CoLab
What is it that you enjoy most about the home?
I think Will Rogers summarised it perfectly almost a century ago when he said, “too many people spend money they haven’t earned to buy things they don’t want to impress people they don’t like”. This house, as modest as it is, is for us. It fits our current lifestyle perfectly. It’s warm, comfortable and it’s all we need.
Now that you’ve lived in the house for a while, how does the plan work for you as a family?
Good storage is so valuable. We put a lot of thought into the storage and joinery design in each room, which has really taken the pressure off the usable floor space. Also, the separation the entry creates between the living and bedroom spaces has proven to be a good decision with the addition of baby Oliver, who can be comfortably tucked up in bed without the need for Hayley and I to tiptoe around the house in socks.
What are the design outcomes that you see as successes?
Hayley and I have lived in a number of small houses over the years, but not many good ones. So many small houses are poorly orientated or connected to one another in a way that limits access to sunlight. This takes its toll on your physical and mental state over time. Our small house has such good quality of space and light – even through the winter months – which has genuinely created an incredibly comfortable and healthy living environment.
How does the design manage privacy from neighbouring properties?
The house is relatively solid to the south, east and west elevations, with only a few considered windows to draw in natural sunlight. This solidity not only helps mitigate any potential privacy issues between properties, but also significantly reduces street noise from nearby Bealey Avenue (which is one of Christchurch City’s main arterial roads that the boy racers love to frequent). The northern elevation is screened with the inclusion of some maple trees and a griselinia hedge along the boundary, strategically placed outside the external doors and windows to diffuse the outlook to the neighbouring property.




